Casa Indipendente 190 mq con 400 mq giardino


Vendesi a DOLO (VE) - Casa Indipendente

190 mq 5 locali 1 bagni
€ 95.000

contatta l'agenzia



Autorizzazione al trattamento dei dati



Descrizione


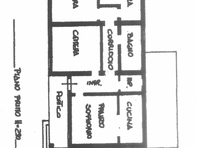
Casa indipendente ottimamente restaurata di circa 190 mq con un bel giardino privato di 400 mq in vendita parzialmente arredata. E' dotata di vetri camera, Porticato, Aria condizionata, riscaldamento autonoma a metano con caldaia a condensazione, tetto rifatto di recente. E' piena di luce perchè esposta tutta a Sud. E' composta da Portico di Ingresso, Corridoio di Ingresso, Soggiorno/Pranzo con Cucinotto separato, Ripostiglio, Cantina, Corridoio notte, 3 Camere matrimoniali, 2 Garages, 2 Magazzini, 4 posti auto esterni. L'agente immobiliare siro stradiotto di telefono 335398918 è lieto di condurvi in visita anche in orari pasto e nei giorni festivi previo appuntamento al telefono 335398918.

Dati tecnici

  • Categoria
    Residenziali
  • Codice
    81
  • Tipologia
    Casa Indipendente
  • Speciale
    Venduto
  • Superfice
    190 mq
  • Numero Locali
    5
  • Contratto
    Vendita
  • Stato Immobile
    Ottimo / Ristrutturato
  • Classe Energetica
    F
  • Indice Prestazione Energetica
    131,06 kWh/m² anno
  • Piano
    Piano Terra
  • Riscaldamento
    Autonomo
  • Cucina
    Abitabile
  • Box Garage
    Si, Doppio
  • Bagni
    1
  • Giardino
    Privato
  • Arredamento
    Arredato
  • Indirizzo
    via Calcroci 78
  • Comune
    DOLO (VE)


mappa dell'immobile



contatta l'agenzia





torna su